집
제작품
슬 루잉 베어링
슬리 드라이브
회사 소개
회사 프로필
역사
생산 능력
시험 장비
품질 관리
증명서
신청
엔지니어링 기계
진흙 긁는 도구
충진 기계
용접 로봇
트럭 탑재 안개 대포
자동 조립 라인
팔레 타이 징 로봇
지원하다
베어링 설치
베어링 유지 보수
베어링 선출
조작
다운로드
뉴스
돌격 반지
슬리핑 드라이브
회사 문화
산업 뉴스
연락처
한국어
Қазақша
românesc
Türk dili
Tiếng Việt
日本語
Italiano
Deutsch
Português
Español
Pусский
Français
العربية
English
현재 위치:
집
»
뉴스
뉴스
최신 정보 및 이벤트에 대해 자세히 알아보십시오.
검색
기사 제목
기사 요약
기사 내용
전체 텍스트 검색
슬링 링
슬링 링
관련 정보로,
슬링 링
및 관련 정보 산업의 최신 동향에 대해 배울 수있어
슬링 링
시장을보다 잘 이해하고 확대 할 수 있도록 도와줍니다.
슬링 베어링 클리어런스
2019-04-19
다양한 응용 프로그램에 설치되지만 일부 기계의 경우 베어링 클리어런스와 정밀도가 필요합니다. 그러나 XZWD Sleewing 베어링 클리어런스와 정밀도는 기계에 가장 적합하며 매우 잘 작동합니다. Slewing Beart Bearing Precision Stardand1. Sleewing의 정밀도
자세히보기
~!phoenix_var0!~
2019-04-19
~!phoenix_var0!~
자세히보기
Slewing Ring 대안
2019-03-08
Sleewing Ring 대안 체계를 만들 때 다음 요인을 취해야합니다. 1. 미끄러짐 정확도 메커니즘이 베어링의 정확한 위치를 위해 높은 정밀도가 필요할 때 크로스 롤러 슬리핑 베어링이 일반적으로 선택됩니다 .2. 운반 용량은 반지 대안을 깎을 때
자세히보기
~!phoenix_var0!~
2019-03-08
~!phoenix_var0!~
자세히보기
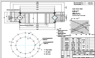
슬리핑 링 베어링 드로잉
2019-01-18
도면은 Slewing 베어링 어셈블리 도면 세트입니다. 도면에는 제품 어셈블리 도면, 부분 프로파일 뷰, 제품 기술 요구 사항, 기어 매개 변수 테이블, 제품 부품 볼, 부품 목록 등이 포함됩니다. 도면은 참조 전용입니다
자세히보기
~!phoenix_var0!~
2019-01-18
~!phoenix_var0!~
자세히보기
«
1
2
3
4
...
8
»
모두8페이지 입 니 다
쪽으로 갑 니 다.
확정 하 다
서주 완다 슬 루잉 베어링 유한 회사
당신을위한 하나의 선택!
서주 완다 슬 루잉 베어링 유한 회사
丨No.8, Dianchang North Road, High-tech Industrial Development Zone, Xuzhou City, Jiangsu Province, China.
丨
+ 86-516-83309366 + 86-516-83303986
丨
info@slew-bearing.com
丨
+ 86-133-37939399 + 86-180 2053 7858
집
집
|
회사 소개
|
제작품
|
뉴스
|
신청
|
지원하다
|
연락처
문의하기
제출